Physical Therapy Center

Project overview

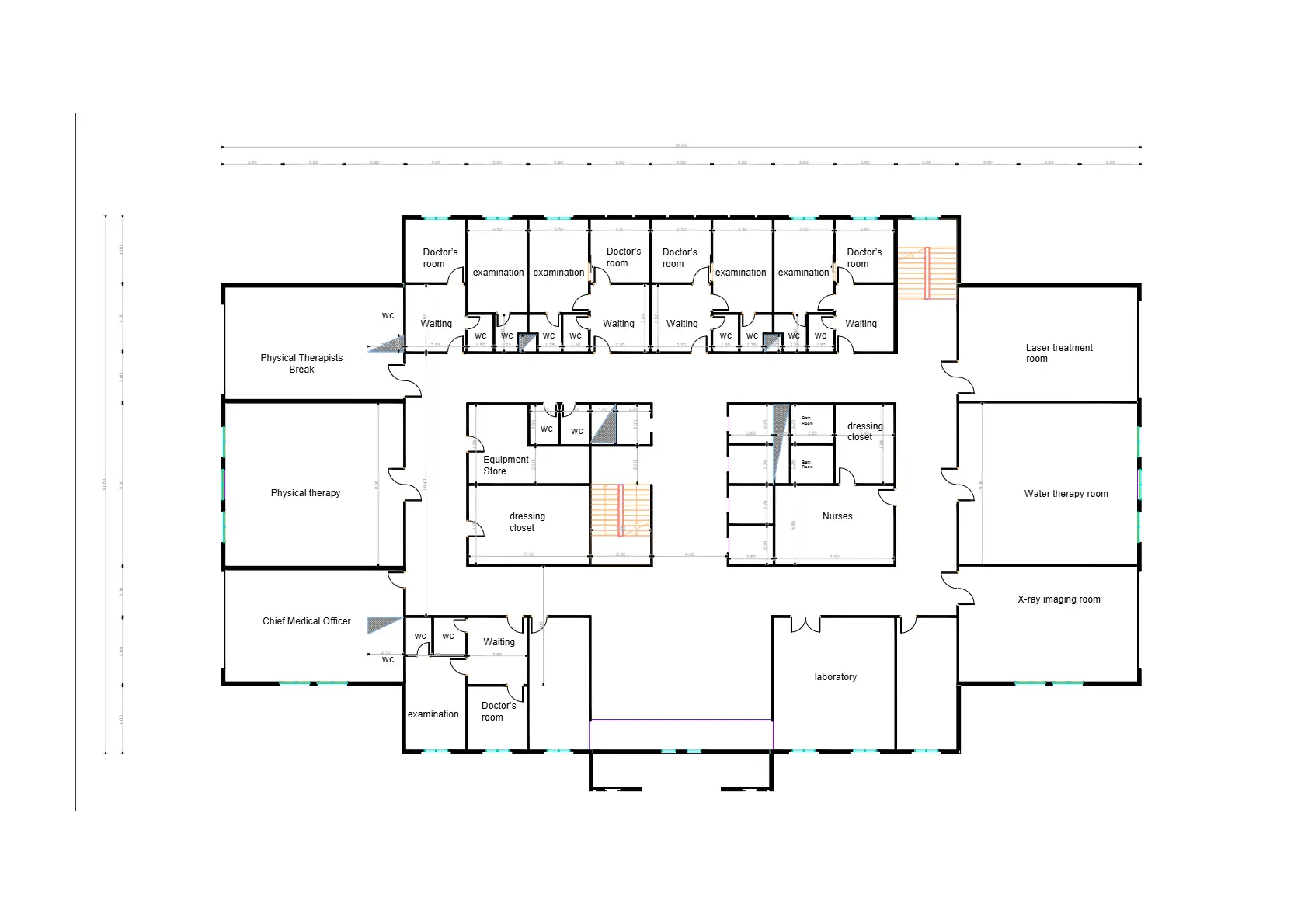
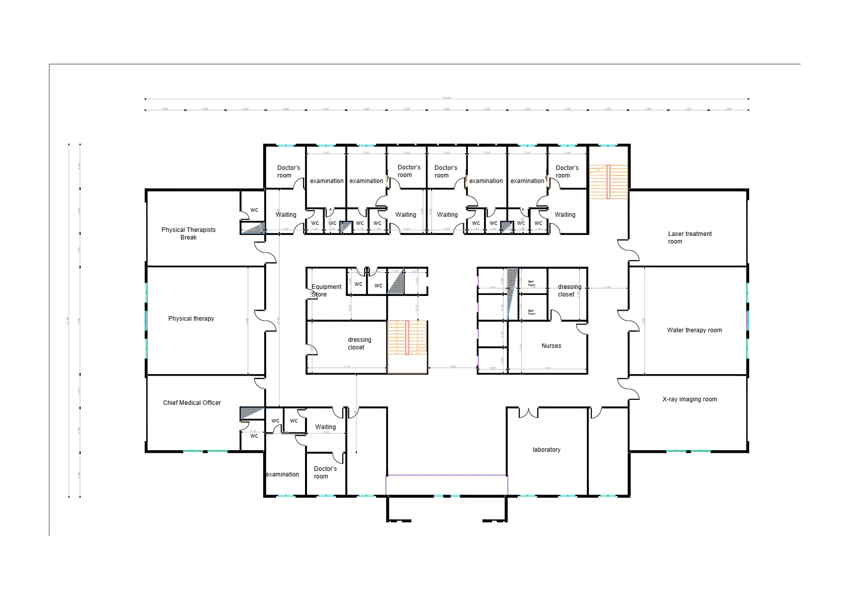
The Physical Therapy Center project meets the needs of those interested in this field, with all its medical and sports details. Several serviced treatment rooms have been included to accommodate the largest possible number of patients.

Specifications

Area of site

0.8 Ha

Date

2024

Status of the project

Under construction

Tools used

AutoCAD, 3Ds Max, V-Ray.

My sketches

Ground Floor
First Floor
Second Floor
Third Floor
Fourth Floor

Results

The project covers the needs of people interested in physical therapy in all its details.

Nada Aledilibi

Brussels, Belgium | aledilibinada@gmail.com

© Nada Aledilibi 2024